[home][stammdaten][kalkulation][verwaltung]

lage

projetsteuerung

Tränkeweg
Hauptnutzfläche: 300,00 m²
Baukosten: 4.200.000,00 Euro


Bild

Lageplan

Inmitten eines Kleinsiedlunggebiets aus den 1950-ger Jahren ist ein "aus der Reihe tanzender" Baukörper geplant.


Bild

Freiflächenplan und Konstruktionsidee

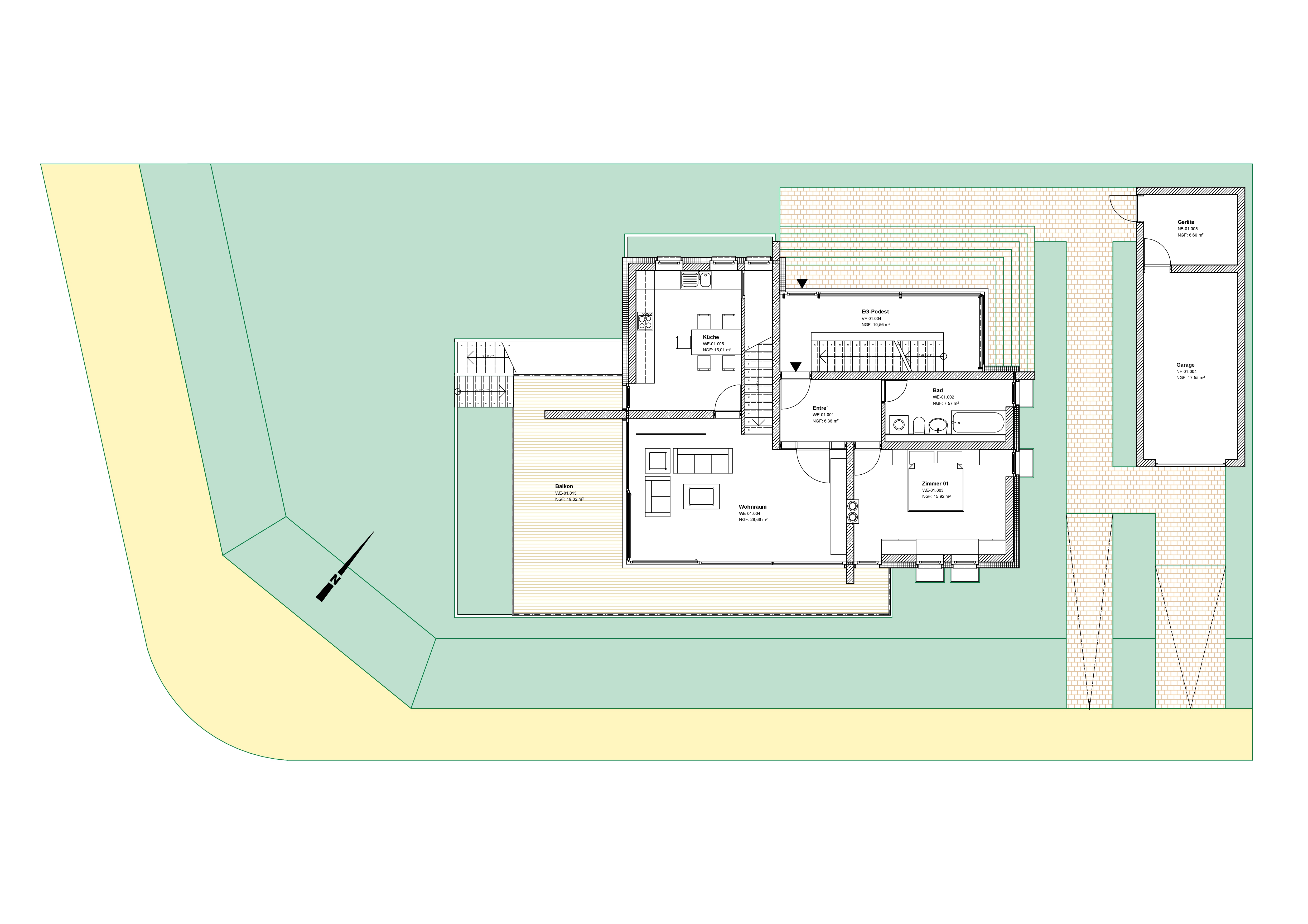
Die Erschließung erfolgt von der östlich gelegenen Nebenstraße zum nördlich angelegten Treppenraum.
Vier aufeinanderzulaufende Wandscheiben bilden einen massiven Kern zur Windaussteifung. Die Außenfassade ist vor die Konstruktion gehangen. Die Gebäudeecken sind im Wechsel entweder komplett verglast oder als Lochfassade ausgebildet. Der völlig verglaste Treppenraum liegt im Norden und bedarf keines Sonnenschutzes. Ihm diametrial gegenüber ist die raumhohe Verglasung des Wohnraums angeordnet, welche von den darüber liegenden Balkonen verschattet wird, so daß ein sommerlicher Wärmeschutz entfallen kann.